物件情報 センター南ビル
概要
| 所在地 | 神奈川県横浜市都筑区 茅ヶ崎中央3-1 |
|---|---|
| 構造 | S |
| 規模 | 地上4階 地下3階 |
| 延床面積 | 2858.08坪 |
| 駐車場 | 空有 |
| 設備・条件 | OAフロア / 新耐震基準 / 駐車場有 / 一等地・駅前 / 駐輪場 |
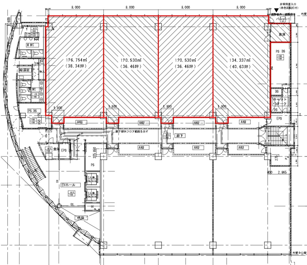
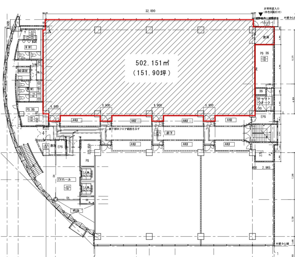
| 区画 | 3階① |
|---|---|
| タイプ | 事務所 |
| 募集面積 | 151.90坪 |
| 現況 | 入居中 |
| 賃料 (坪単価/税別) |
相談 |
| 共益費 (坪単価/税別) |
賃料に含む |
| 敷金 | 相談 |
| 礼金 | 無し |
| 入居時期 | 2026/7/1 |
Loading...
- ※募集状況につきましては変動がある為、最新状況はお問合せ先にご連絡ください。
- ※掲載内容が現況と異なる場合は現況を優先いたします。
- ※入居に際して所定の手続きがございますので、場合によってはご入居できない可能性がございます。
その他募集状況
お問合せ先
株式会社ベスト・プロパティ
北海道、東北、関東
東京本社:03-6453-6664
中部
名古屋支店:052-253-8286
関西、四国
大阪本社:06-6261-0231
中国、九州、沖縄
福岡支店:092-418-7211
※は必須項目です。お間違いのないようご入力ください。




印刷する
